1052 Le Mont-sur-Lausanne
CHF 2’475’000.-
Bel appartement en attique
-
Vaud, Corcelles-près-Payerne -
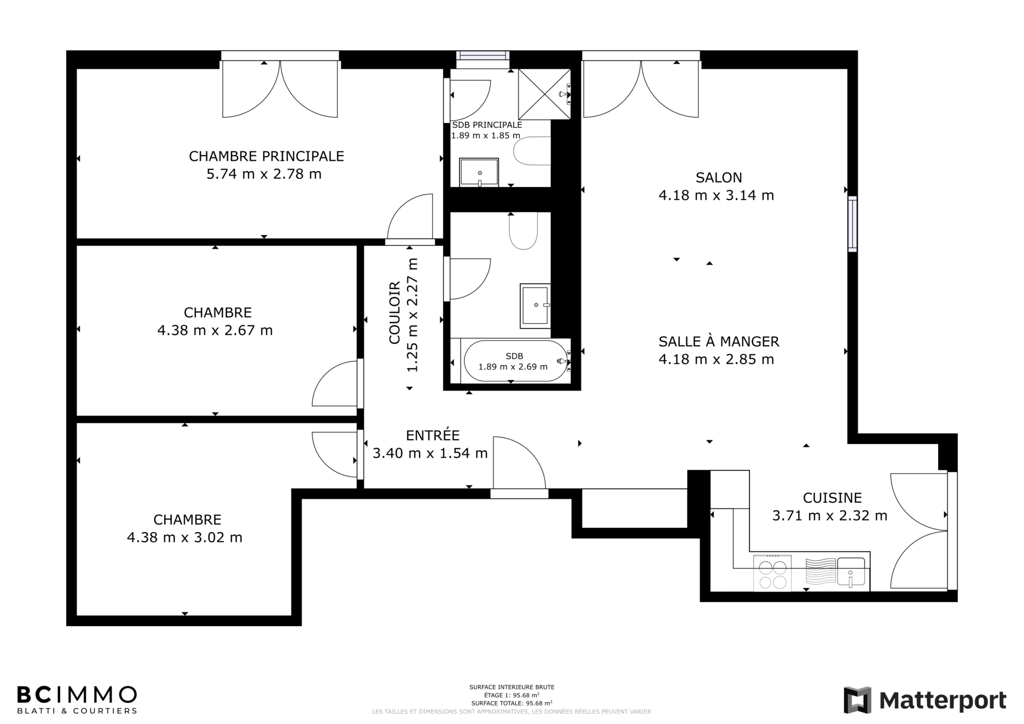
Surface 95 m²
-
2 salles de bain
-
3 chambres
-
4.5 pièces
Référence #2153
Informations sur le bien
Pour l’achat de notre appartement franchement nous sommes tombés sur une personne de confiance, à l’écoute, disponible et surtout son professionnalisme qui nous a permis de réaliser notre rêve.
Contactez-nous
Votre demande a été reçue.
Merci de nous avoir contacté ! Nous vous répondrons dans les plus brefs délais.
Ce site est protégé par reCAPTCHA et par conditions d'utilisation et Politique de confidentialité de Google