1263 Crassier
CHF 1’580’000.-
Appartement minergie dans l'hyper-centre de Saint-Cergue
-
Vaud, St-Cergue -
2 salles de bain
-
3 chambres
-
4.5 pièces
Référence #2142
Informations sur le bien
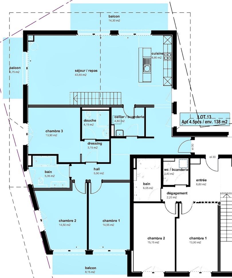
Nous avons le plaisir de vous proposer ce magnifique appartement de 4,5p, lot 13 de la résidence Minergie "VESTA", qui sera érigée au cœur de la commune de Saint-Cergue et alliera à merveille charme et modernité.
Au bénéfice de spacieux et lumineux volumes, sa distribution sera faite comme suit :
Un spacieux hall d’entrée qui desservira, un cellier / buanderie, une salle d'eau / wc, mais également trois belles chambres à coucher dont une suite parentale qui profitera d'une salle d'eau / wc privative et d'un dressing. Deux des chambres bénéficieront d'un balcon de plus de 8m2.
L'appartement sera complété par un bel espace de vie composé d'une cuisine moderne ouverte sur le séjour / salle à manger, qui donnera accès à deux balcons, l'un de près de 7m2 et le second d'un peu plus de 14m2.
Gros avantage de ce lot, il vous offre une mezzanine de près de 72m2 aux multiples possibilités d'usage.
Au bénéfice de spacieux et lumineux volumes, sa distribution sera faite comme suit :
Un spacieux hall d’entrée qui desservira, un cellier / buanderie, une salle d'eau / wc, mais également trois belles chambres à coucher dont une suite parentale qui profitera d'une salle d'eau / wc privative et d'un dressing. Deux des chambres bénéficieront d'un balcon de plus de 8m2.
L'appartement sera complété par un bel espace de vie composé d'une cuisine moderne ouverte sur le séjour / salle à manger, qui donnera accès à deux balcons, l'un de près de 7m2 et le second d'un peu plus de 14m2.
Gros avantage de ce lot, il vous offre une mezzanine de près de 72m2 aux multiples possibilités d'usage.
L'appartement sera par ailleurs accompagné d'une cave et de deux places de parking souterraines en sus au prix de CHF 70'000.- l’ensemble.
Jouissant d'une situation plus que centrale, vous accéderez en un éclaire aux multiples commodités offertes par la commune et notamment la gare ferroviaire vous permettant de rejoindre Nyon. L'autoroute se situe quant à elle à une dizaine de minutes.
L’ensemble des choix de finitions sont vôtre grâce à d'agréables budget mis à disposition.
Les atouts de ce projet ?
- Un constructeur local et de renom
- Une architecture harmonieuse
- Un projet axé sur le confort, l'écologie et la performance énergétique
- Une situation centrale au sein du village
- De nombreuses commodités à proximité
N'hésitez pas à nous contacter pour obtenir de plus amples informations.
Contactez-nous
Votre demande a été reçue.
Merci de nous avoir contacté ! Nous vous répondrons dans les plus brefs délais.
Ce site est protégé par reCAPTCHA et par conditions d'utilisation et Politique de confidentialité de Google