1304 Cossonay-Ville
CHF 1’150’000.-
Maison de bourg
-
Vaud, Denges -
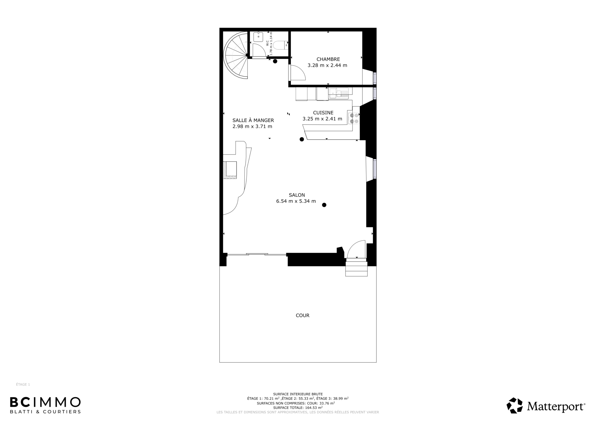
Surface 146 m²
-
2 salles de bain
-
3 chambres
-
4.5 pièces
Référence #2196
Informations sur le bien
Située dans un ancien corps de ferme, cette maison pleine de caractère, développée en 1986, allie authenticité et confort. Grâce à de larges ouvertures et de généreuses fenêtres de toit, l’ensemble du bien bénéficie d’une belle luminosité tout au long de la journée.
Les étages supérieurs dévoilent des pièces aux poutres apparentes.
À l’extérieur, une cour en gravier prolonge l’espace de vie.
Équipée de panneaux solaires, cette maison combine charme d’antan et préoccupations contemporaines, dans un cadre agréable au centre du village.
Répartie sur trois niveaux et offrant une surface habitable d’environ 146 m², la maison séduit par son atmosphère chaleureuse et son cachet unique.
Le rez-de-chaussée s’ouvre sur un vaste espace de vie convivial où baies vitrées et portes-fenêtres laissent entrer la lumière.
Les étages supérieurs dévoilent des pièces aux poutres apparentes.
À l’extérieur, une cour en gravier prolonge l’espace de vie.
Équipée de panneaux solaires, cette maison combine charme d’antan et préoccupations contemporaines, dans un cadre agréable au centre du village.
Contactez-nous
Votre demande a été reçue.
Merci de nous avoir contacté ! Nous vous répondrons dans les plus brefs délais.
Ce site est protégé par reCAPTCHA et par conditions d'utilisation et Politique de confidentialité de Google