1264 St-Cergue
CHF 1’133’000.-
Appartement minergie dans l'hyper-centre de Saint-Cergue
-
Waadt, St-Cergue -
2 Badezimmer
-
3 Räume
-
4.5 Räume
Référence #2147
Information auf das Gute
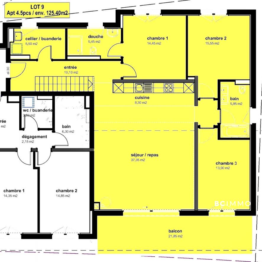
Nous avons le plaisir de vous proposer ce magnifique appartement de 4,5p, lot 9 de la résidence Minergie "VESTA", qui sera érigée au cœur de la commune de Saint-Cergue et alliera à merveille charme et modernité.
Au bénéfice de spacieux et lumineux volumes, sa distribution sera faite comme suit :
Un spacieux hall d’entrée qui desservira, un cellier / buanderie, une salle d'eau / wc, mais également trois belles chambres à coucher dont une suite parentale qui profitera d'une salle d'eau / wc privative.
L'appartement sera complété par un bel espace de vie composé d'une cuisine moderne ouverte sur le séjour / salle à manger, qui, au même titre que l'une des chambres, donnera accès à un vaste balcon de plus de 21m2.
Gros avantage de ce lot, il vous offre une mezzanine de près de 47m2 aux multiples possibilités d'usage.
L'appartement sera par ailleurs accompagné d'une cave et de deux places de parking souterraines en sus au prix de CHF 70'000.- l’ensemble.
Jouissant d'une situation plus que centrale, vous accéderez en un éclaire aux multiples commodités offertes par la commune et notamment la gare ferroviaire vous permettant de rejoindre Nyon. L'autoroute se situe quant à elle à une dizaine de minutes.
L’ensemble des choix de finitions sont vôtre grâce à d'agréables budget mis à disposition.
Les atouts de ce projet ?
- Un constructeur local et de renom
- Une architecture harmonieuse
- Un projet axé sur le confort, l'écologie et la performance énergétique
- Une situation centrale au sein du village
- De nombreuses commodités à proximité
N'hésitez pas à nous contacter pour obtenir de plus amples informations.
Kontact
Ihre Anfrage wurde empfangen.
Vielen Dank, dass Sie uns kontaktiert haben! Wir werden so schnell wie möglich antworten.
Diese Seite ist durch reCAPTCHA und durch geschützt Nutzungsbedingungen und Google-Datenschutzrichtlinie